Back to search results

27A Fairlight Street, Mosman Park WA 6012

Sold price: $760,000 Sold: 10 Jun 2021
Sold
  • 3 Bedrooms
  • 1 Bathroom
  • 1 Car
  • Landsize 116m2
Townhouse
27A Fairlight Street, Mosman Park WA 6012

PRIVATE & SECURE

Private, secure and homely, three words that perfectly describe this townhouse.

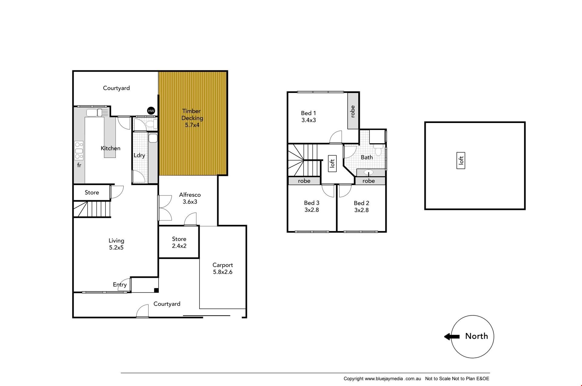
Tucked away in a private and tranquil location this townhouse is the perfect lock and leave. There are multiple entries, being a formal front door, a sliding glass door from the enclosed front courtyard, the French patio door from a covered entertainment area and a back door. The outside spaces are all visible and easily accessible from the inside.

Inside you are greeted by lovely wooden floors, a light and bright feel and modern finishes. Moving through to the kitchen this boasts white gloss cabinetry, granite benchtops and stainless steel appliances, plus an abundance of storage. Next to the kitchen is the laundry which has a second separate toilet perfect for guests.

Upstairs are the three generous-sized bedrooms all with inbuilt robes, two with their own split air conditioners and ceiling fans. The bedrooms are all serviced by a bathroom that has a shower, toilet and single vanity. Also upstairs for added storage is an attic with a drop-down ladder for convenience.

To the outside, there are multiple entertaining areas all of which have been carefully thought out to maximize entertaining your guests all year round. With two seating areas, one being undercover plus with fantastic storage, reticulated gardens and to top it all off a hot and cold shower perfect for when you come back home from the beach.

What we love about this property:
- Private, secure & modern
- Plenty of storage, including an attic & secure storeroom
- Wooden floors
- Split system, reverse cycle airconditioning
- Great outdoor entertaining areas
- Outdoor shower

What we love about this location:
- 180m approx. to Belin Café
- 190m approx. to Iona Presentation College (Primary)
- 250m approx. to Mosman Park Shopping Centre
- 430m approx. to the nearest bus and train station
- 660m approx. to South Cottesloe Beach

For more information or to book an inspection please contact Trent Vivian 0432 392 387 or Gill Vivian 0415 853 926.

Please note that while every best effort is made to ensure rates are correct at the time of listing, they are provided for reference only and may be subject to change.
Chattels depicted or described are not included in the sale unless specified in the Offer and Acceptance.

We are your Western Suburbs Specialists - Living and Breathing Mosman Park!

Council Rates: $1,837.00 per annum approx.
Water Rates: $1,136.00 per annum approx.

Property features

  • Carports 1
  • Toilets 2

Property snapshot by reiwa.com

This property at 27A Fairlight Street, Mosman Park is a three bedroom, one bathroom townhouse sold by Trent Vivian and Gill Vivian at Vivian's Real Estate on 10 Jun 2021.

Looking to buy a similar property in the area? View other three bedroom properties for sale in Mosman Park or see other recently sold properties in Mosman Park.

Cost breakdown

  • Council rates: $1,837 / year
  • Water rates: $1,136 / year

Nearby schools

0.4km
0.9km
Iona Presentation College
  • Combined
  • Non-government
Disclaimer

Mosman Park overview

Home to some of the most exclusive properties in Perth, Mosman Park also has some industrial and commercial infrastructure. Flanked by numerous beautiful parks and with views of the Indian Ocean and Swan River to the west and east, the affluent town is something of an aspirational focal point for lovers of architecture.

Life in Mosman Park

Located along Stirling Highway, Mosman Park offers a unique ocean-side and river-side lifestyle few suburbs within Perth can boast. The suburbs largest industry is said to be its education establishments with six schools (two of which have boarding facilities) within the area. Recreational facilities are another fixture of Mosman Park with lawn bowls, football, soccer, tennis, cricket, netball and the performing arts all catered for within the town's boundaries.

Mosman Park quick stats

High end $3.6m
Median $2.6m
Low end $2.1m
22.6%
Annual growth
$2.6m
Annual median sales price
$1,400pw
Annual median rental price

Contact the agent

Email the agent

Mandatory fields *

Mortgage calculator

FAQ's

27A Fairlight Street, Mosman Park was sold by Trent Vivian and Gill Vivian at Vivian's Real Estate.

You can contact the agent here.

The average number of selling days in Mosman Park is 17 days.

27A Fairlight Street, Mosman Park sold on 10/6/2021 for $760,000.
Call