Back to search results

10 Wesley Street, South Fremantle WA 6162

Sold price: $1,350,000 Sold: 20 Apr 2022
Sold
  • 3 Bedrooms
  • 2 Bathrooms
  • Landsize 286m2
House
10 Wesley Street, South Fremantle WA 6162

Please call to discuss - Thank you

One of the finest heritage restorations of an original circa 1893 limestone cottages in the greater Fremantle area. This elevated home has to be experienced to be appreciated. A complete, quality restoration of the original cottage and renovated / refurbished spaces across the property means the carefree South Fremantle lifestyle awaits the new owners.

The current owners, a professional couple in the design and construction industry, have shown extreme care in both the restoration and renovation of the property with considered detailing throughout and efficient use of all available space on the property. High end fixtures and fittings throughout along with custom joinery results in an excellent architectural outcome.

Elevated on the high point of the street, the house garners views back across Beaconsfield to the rear. The street has very little through traffic and is located within a friendly neighbourhood and community atmosphere. The street alone is an excellent example of why South Fremantle is a highly sought-after place to live.

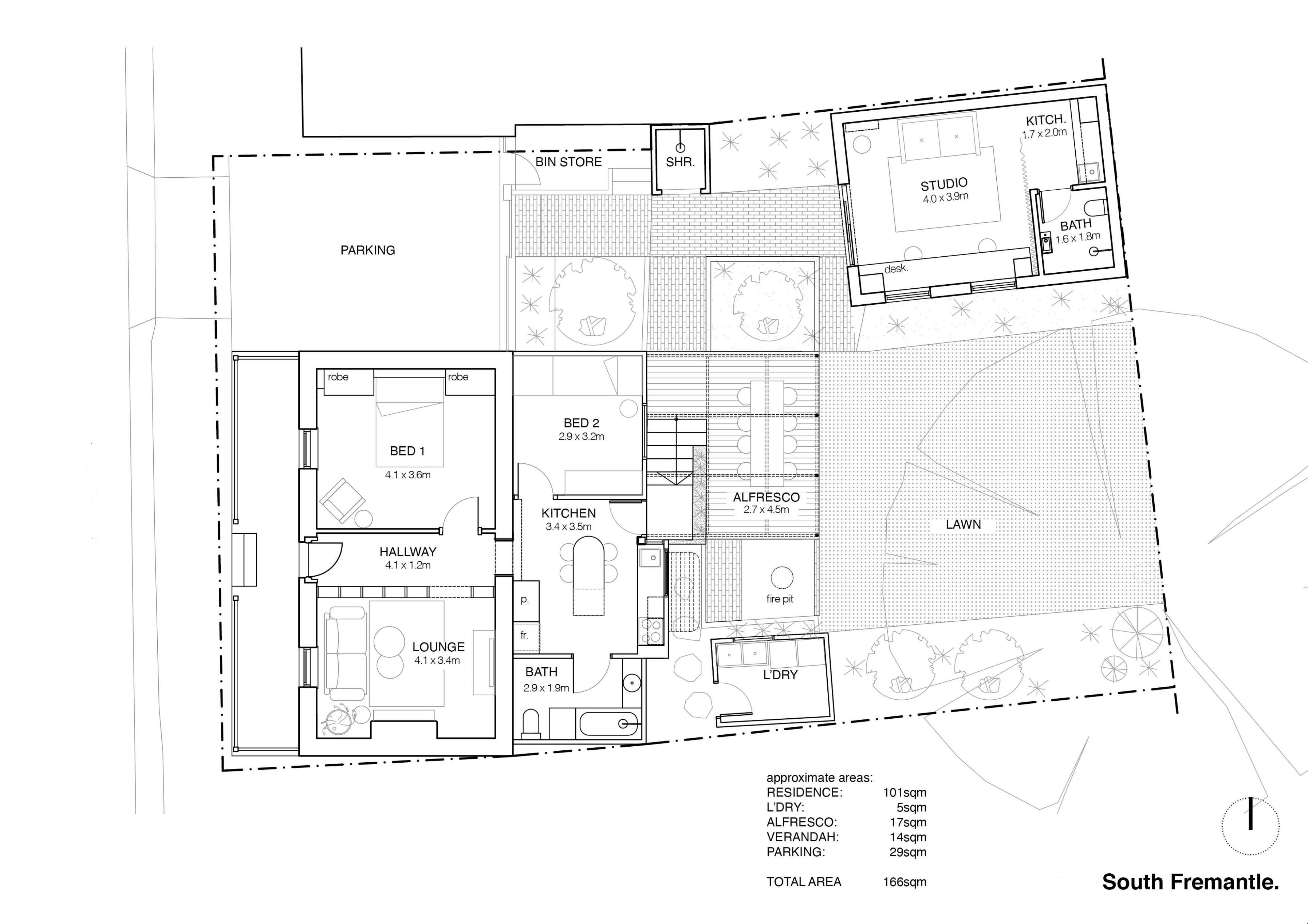
Separate from the house, a flexible studio space with its own bathroom and kitchenette offers the ultimate work from home setup, or could function as an additional bedroom, yoga studio or home gym.

Words don't do the property justice and we look forward to welcoming you for an inspection. Homes like this do not come up for sale very often.


Features include:

Internal
• Fully Functioning and restored open fireplace
• New kitchen with custom joinery and leathered granite bench tops
• Fisher and Paykel induction cooktop, pyrolytic oven and integrated dishdrawer
• Full height sheer and blockout curtains to bedrooms and lounge
• Reclaimed jarrah boards throughout front rooms and kitchen
• Big-Ass haiku fans to lounge and bed 1
• Custom solid jarrah bookcase to entry hallway / lounge
• Full height custom wardrobe / bedhead joinery to bed 1 with bronze mirror and brass details
• Buster + Punch light switches, door handles and cabinetry handles to lounge and bed 1
• Ducted Air-conditioning to original cottage and split units to other spaces
• Flexible studio space with ensuite and kitchenette. Can be used as third bedroom / retreat / studio / working space.
• High specification joinery - fully integrated feature jarrah furniture

External
• Off-street parking available for multiple vehicles
• Lush fully reticulated gardens with north facing aspect
• Restored original limestone facade with traditional style custom made timber windows (double glazed) to original house
• Wide board jarrah decking to front verandah and alfresco zone
• Outdoor shower in restored original outhouse
• Fire pit
• Alfresco / Deck area with garden trellis
• Under house storage
• Garden Shed
• Recycled brick pathways and concealed bin store

Lifestyle:
The owners simply love living here. Mornings on a summer weekend consist of walking to South Beach for a swim followed by coffee and breakfast at Little Loaf Bakery. Wash off in the outdoor shower when returning home as you dry out on the deck overlooking the lush garden. Lunch and shopping at Manna Wholefoods is followed by afternoon in the fully air conditioned studio escaping the heat. Evening is a ride down to Percy Flint for a drink before following on to La Cabana for a relaxed dinner.

Winters are just as nice with cosy evenings around the open fire with a wine and book from the open shelf feature joinery. Fully ducted aircon to the main cottage space means all spaces are kept warm and cosy while a roast is cooking in the newly renovated kitchen.

Location:
150m to Beaconsfield Primary School
400m to Bars / Cafes / Restaurants on South Terrace
600m to Peaches and IGA
900m to South Fremantle Dog Beach
1.4km to Central Fremantle

Heritage:
The property is listed on the local authority Municipal Inventory and classified as of cultural heritage significance (Level 02). It is also included in the 'Eleven Houses' which demonstrate examples from all eras in South Fremantle from circa 1900.

Call Phong Pham to hear more details on 0402 859 781.

Property features

Property snapshot by reiwa.com

This property at 10 Wesley Street, South Fremantle is a three bedroom, two bathroom house sold by Phong Pham at Acton | Belle Property Dalkeith on 20 Apr 2022.

Looking to buy a similar property in the area? View other three bedroom properties for sale in South Fremantle or see other recently sold properties in South Fremantle.

Cost breakdown

  • Water rates: $1,236 / year

Nearby schools

0.4km
0.9km
Fremantle Primary School
  • Primary
  • Government
1.1km
Fremantle College
  • Secondary
  • Government
Disclaimer

South Fremantle overview

South Fremantle is an established residential area within the City of Fremantle. Spanning two square kilometres, the land has harbour uses in the west sector as well as some commercial land use. Settlement of South Fremantle started in 1831 with growth taking place in the late 1800s and early 1900s. Expansion continued during the 1950s and 1960s and again in the early 1990s when new dwellings were added to the area.

Life in South Fremantle

With the Fremantle city centre just kilometres away, residents of South Fremantle will not want for things to do. South Beach is a major feature within the suburb, bringing to life its coastal appeal and there are plenty of local parks to explore. Other features of note are South Fremantle Shopping Centre, South Fremantle Market Place and Success Harbour Train Station, which provides convenient transport into Perth.

South Fremantle quick stats

High end $1.9m
Median $1.7m
Low end $1.4m
0.0%
Annual growth
$1.7m
Annual median sales price
$805pw
Annual median rental price

Contact the agency

Email the agency

Mandatory fields *

Mortgage calculator

FAQ's

10 Wesley Street, South Fremantle sold on 20/4/2022 for $1,350,000.

10 Wesley Street, South Fremantle is a 3 bedroom, 2 bathroom house.

10 Wesley Street, South Fremantle was sold by Phong Pham at Acton | Belle Property Dalkeith.

You can contact the agent here.

Call